Leased
For Lease
  • Offices
  • Exceptional Value Office in the Highly Desirable Inner West!

    Unit G/5 Butler Boulevard, Adelaide Airport, SA 5950 Australia
    Leased
    For Lease
  • Offices
  • Exceptional Value Office in the Highly Desirable Inner West!

    Unit G/5 Butler Boulevard, Adelaide Airport, SA 5950 Australia
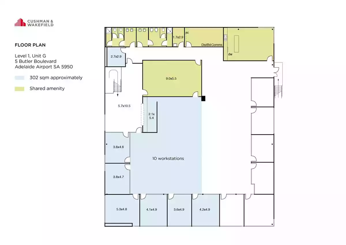
    Building Size
    302 SQM
    Building Size
    302 SQM

    OVERVIEW

    Located in the Adelaide Airport commercial precinct, this 302 sqm* of exclusive office for sublease comes fitted with offices and open plan area completed with workstations and furniture, providing fast and cost-effective relocation.


    In addition to the exclusive area are shared facilities, including:

    • Shared reception
    • Kitchen
    • Spacious meeting rooms
    • Well-appointed boardroom

    5 Butler Boulevard is ideally suitable for 15-20 full time employees, has ample onsite parking marking easy access for staff and clients.


    Don't miss out on this incredible opportunity to secure your ideal office space near Adelaide Airport!


    Available for immediate occupation. 


    Please contact Angus Massie to arrange an inspection.

    - Adelaide Metro

    Details

    Rental Price:
    $60,000.00 AUD
    Building Size:
    302 SQM

    AVAILABILITIES

    LOCATION

    With your permission we and our partners would like to use cookies in order to access and record information and process personal data, such as unique identifiers and standard information sent by a device to ensure our website performs as expected, to develop and improve our products, and for advertising and insight purposes.

    Alternatively click on More Options and select your preferences before providing or refusing consent. Some processing of your personal data may not require your consent, but you have a right to object to such processing.

    You can change your preferences at any time by returning to this site or clicking on Privacy & Cookies.
    MORE OPTIONS
    AGREE AND CLOSE
    These cookies ensure that our website performs as expected,for example website traffic load is balanced across our servers to prevent our website from crashing during particularly high usage.
    These cookies allow our website to remember choices you make (such as your user name, language or the region you are in) and provide enhanced features. These cookies do not gather any information about you that could be used for advertising or remember where you have been on the internet.
    These cookies allow us to work with our marketing partners to understand which ads or links you have clicked on before arriving on our website or to help us make our advertising more relevant to you.
    Agree All
    Reject All
    SAVE SETTINGS