Available
For Lease
  • Offices
  • High Exposure in the Heart of Modbury

    108-110 Reservoir Road, Modbury, SA 5092 Australia
    Available
    For Lease
  • Offices
  • High Exposure in the Heart of Modbury

    108-110 Reservoir Road, Modbury, SA 5092 Australia

    OVERVIEW

    110 Reservoir Road commands one of the most desirable locations in the northeast of Adelaide. Opposite Westfield Tea Tree Plaza your business will thrive on the high exposure this space has. Your team will love the vibrant surroundings and easy access to amenities such as underground car parking and public transport.


    The flexible tenancy options are well arranged and fitted to suit your need and are all ready for immediate occupation. All tenancies include kitchen facilities, ample meeting rooms, private offices, and well-appointed board rooms.


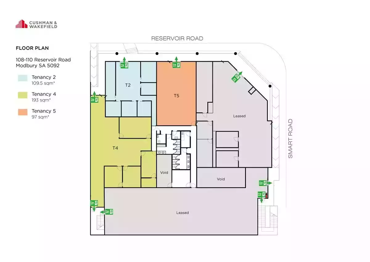
    Tenancy Options:


    Tenancy 2 – 109.5sqm* approx.

    - Fully fitted with private offices, board room and meeting room as well as a open plan collaborative working space. This tenancy has great street frontage allowing for signage options and natural light. 


    Tenancy 4 – 193sqm* approx.

    - Open plan office area with separate meeting rooms, fitted board room and private kitchen. 


    Combined Tenancy option of Tenancy 2 & 4 – (302.5sqm approx.)


    For more information or to schedule an inspection, please do not hesitate to contact the exclusive marketing agents.


    *Approximately

    RLA 315 726

    - Adelaide Metro

    Details

    Rental Price:
    Contact us for pricing

    AVAILABILITIES

    LOCATION

    With your permission we and our partners would like to use cookies in order to access and record information and process personal data, such as unique identifiers and standard information sent by a device to ensure our website performs as expected, to develop and improve our products, and for advertising and insight purposes.

    Alternatively click on More Options and select your preferences before providing or refusing consent. Some processing of your personal data may not require your consent, but you have a right to object to such processing.

    You can change your preferences at any time by returning to this site or clicking on Privacy & Cookies.
    MORE OPTIONS
    AGREE AND CLOSE
    These cookies ensure that our website performs as expected,for example website traffic load is balanced across our servers to prevent our website from crashing during particularly high usage.
    These cookies allow our website to remember choices you make (such as your user name, language or the region you are in) and provide enhanced features. These cookies do not gather any information about you that could be used for advertising or remember where you have been on the internet.
    These cookies allow us to work with our marketing partners to understand which ads or links you have clicked on before arriving on our website or to help us make our advertising more relevant to you.
    Agree All
    Reject All
    SAVE SETTINGS