Sale
For Sale
  • Industrial
  • 12120 Metro Pkwy

    12120 Metro Pkwy, Fort Myers, FL 33966 United States
    Sale
    For Sale
  • Industrial
  • 12120 Metro Pkwy

    12120 Metro Pkwy, Fort Myers, FL 33966 United States
    Building Size
    19,372 SF
    Available Space
    19,372 SF
    Lot Size
    1.51 Acres
    Built
    2002
    Building Size
    19,372 SF
    Available Space
    19,372 SF
    Lot Size
    1.51 Acres

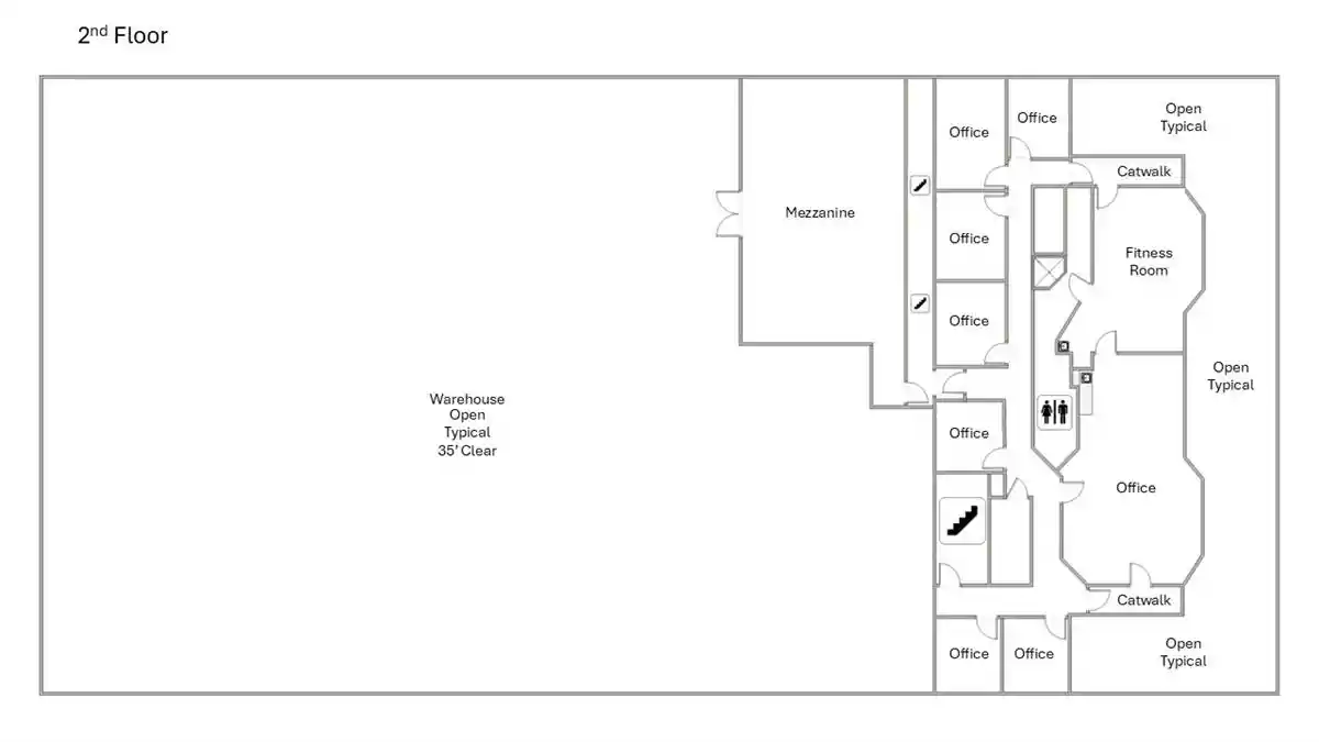
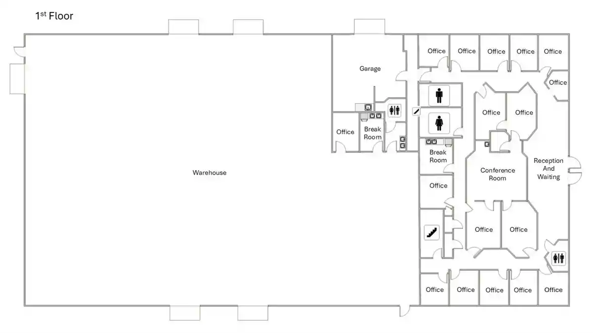
    OVERVIEW

    This vacant owner-user light industrial warehouse is positioned along Metro Parkway, offering strong exposure in a high-traffic corridor with excellent visibility. The concrete, fully sprinklered building features a modern 35’ clear-height warehouse designed for efficient operations, along with multiple overhead doors and convenient truck well access. The property is equipped with 3-phase power and is fully air-conditioned, supporting a wide range of light industrial, owner-user needs. Its central Metro Parkway location provides easy access to major roadways, making it a highly functional and well-located opportunity.
    See flyer for price!

    Details

    Building Size:
    19,372 SF
    Available Space:
    19,372 SF
    Sale Price:
    Contact us for pricing
    Lot Size:
    1.51 Acres
    Year Built:
    2002
    12120 Metro Pkwy

    LOCATION

    RELATED PROPERTIES

    Exterior
    Exterior
    Exterior
    Exterior
    Exterior
    Sale
    For Sale ● Industrial
    2585 Fourth St

    2585 Fourth St
    Fort Myers, FL 33901
    United States

    Sale Price: $1,520,000 USD

    Property Rendering
    Units
    Site Plan
    Build out
    For Sale
    For Sale ● Industrial
    Beaches Business Park - Building 1 & 2

    16225/16235 Pine Ridge Rd
    Fort Myers , FL 33908
    United States

    Sale Price: $19,195,000 USD

    Exterior
    Upstairs Office
    Front Office
    Front Office Storage
    Upstairs Office Closet
    Warehouse Door
    For Sale ● Industrial
    12165 Metro Pkwy Unit 19B-22B

    12165 Metro Pkwy Unit 19B-22B
    Fort Myers, FL 33966
    United States

    Sale Price: $748,980 USD

    With your permission we and our partners would like to use cookies in order to access and record information and process personal data, such as unique identifiers and standard information sent by a device to ensure our website performs as expected, to develop and improve our products, and for advertising and insight purposes.

    Alternatively click on More Options and select your preferences before providing or refusing consent. Some processing of your personal data may not require your consent, but you have a right to object to such processing.

    You can change your preferences at any time by returning to this site or clicking on  Cookies

    More Options
    Agree and Close
    These cookies ensure that our website performs as expected,for example website traffic load is balanced across our servers to prevent our website from crashing during particularly high usage.
    These cookies allow our website to remember choices you make (such as your user name, language or the region you are in) and provide enhanced features. These cookies do not gather any information about you that could be used for advertising or remember where you have been on the internet.
    These cookies allow us to work with our marketing partners to understand which ads or links you have clicked on before arriving on our website or to help us make our advertising more relevant to you.
    Agree All
    Reject All
    SAVE SETTINGS